- 一个博物馆展柜工厂对于南京博物院馆捐献名画现身拍卖市场的看法
- 开封大学“博物馆+”文化育人模式开启高效文化宣传新篇章
- 博物馆展柜定制背后的“细微之处”:不仅是展示,更是对历史的敬畏
- 博物馆文物展柜安全保障的四道屏障,共同守护一段无法复制的时光
- 采用的二手文物展柜用于文物展览有哪里利弊?
- 专业展柜厂家揭秘文物展柜定制全流程,保障文物安全力度加满
联系人:章先生
手机:188-5868-7779
电话:0571-89086171
邮箱:728526712@qq.com
地址:浙江省杭州市余杭区余杭街道圣地路9号
博物馆展柜CAD图纸是什么,为什么被广泛使用?
对于广大博物馆来说展柜是最重要的展示器材之一,那么对于博物馆展柜的设计一般是采用cad图纸。那么什么是博物馆的cad图纸呢?今天就通过案例给大家简单了解一下。

Cad图纸技术产生于上世纪70年的美国,随着计算机技术的兴起和发展,相关的应用技术和辅助设计工具应运而生,在工业社会被广泛使用。
Cad的图纸一般要利用专业或者根据行业定制的cad图纸经行编辑。Cad可以概括3大主要技术:
1,Cad图纸的交互技术,们可以边构思 、边打样、边修改,随时可从图形终端屏幕上看到每一步操作的显示结果,非常直观。
2,图形变换技术可以把用户坐标系和图形输出设备的坐标系联系起来,对图形作平移、旋转、缩放、透视变换等方式实现图形变换。
3,实体及曲面造型技术可以实现计算机自身设计和研制过程的自动化或半自动化。

博物馆展柜图纸设计可以利用cad的众多功能强大比如:·平面绘图,三维绘图,绘图辅助工具,·数据交换,编辑图形·,·网络功能,标注尺寸,书写文字,·图层管理·等功能。
一般博物馆展柜的设计图都是因馆而易。不同的装饰风格会采用不同设计的展柜样式及材料来实现整体的搭配。并且不同的展柜所采用的零部件也是可以通多cad图纸经行标注。
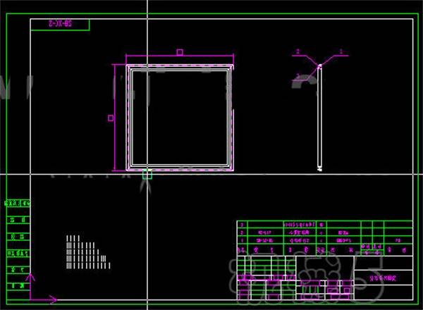
上面图片是联康展柜为客户设计的博物馆独立柜的cad设计图,通过上卖弄的cad图我们可以看到展柜的大致形式和详细的尺寸等细节设计,通过这样的CAD样式图博物馆展柜厂家直接用于生产加工。

-
2025-12-20 17:58:05一个博物馆展柜工厂对于南京博物院馆捐献名画现身拍卖市场的看法
-
2025-12-17 09:12:09开封大学“博物馆+”文化育人模式开启高效文化宣传新篇章
-
2025-12-02 09:39:11博物馆展柜定制背后的“细微之处”:不仅是展示,更是对历史的敬畏
-
2025-11-05 09:20:57博物馆文物展柜安全保障的四道屏障,共同守护一段无法复制的时光
-
2025-10-25 10:03:40专业展柜厂家揭秘文物展柜定制全流程,保障文物安全力度加满
-
2025-10-15 09:11:35文物保护前沿技术盘点:数字化技术的新突破



浙公网安备33011002018212号